Nossa linha de produção é profissional para fabricar semirreboques pesados para a indústria de transporte de cargas grandes e pesadas.
Cada veículo especial será atendido por um engenheiro individual. Oferecemos serviço personalizado para sua situação de logística pesada.
- 1 em 1 engenheiro de design especial (personalizado)
- Produtos fortes e suportáveis
- Solução de entrega Safe & Sound Ocean
- Garantia por 12 meses
|
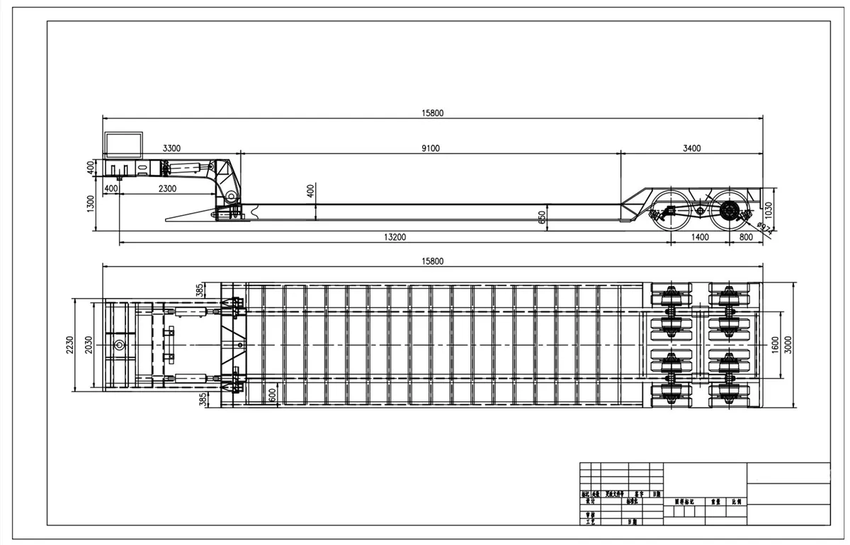
Modelo: semi-reboque hidráulico de cama baixa de 2 linhas e 4 eixos |
||
|
Parâmetro principal |
todo o tamanho (mm) |
15800 (comprimento) x3000 (largura) |
|
altura da superfície de carga (mm) |
600 |
|
|
rampa de embarque em pescoço de ganso |
10-20grau |
|
|
tara (kg) |
16500 |
|
|
carga útil (kg) |
80,000 |
|
|
Quadro principal |
feixe principal |
altura 400, design de seção transversal variável, |
|
viga lateral |
Viga I (viga flangeada) 400, placa de alta resistência T700 |
|
|
tábua de chão |
Placa T700 de alta resistência 5mm, tratamento antiderrapante |
|
|
pintura |
jateamento de chassi completo (esfera de aço), jateamento de lixa para tratamento térmico de alívio de tensões, duas demãos de tinta |
|
|
Acessórios |
pescoço de ganso |
elevação hidráulica, separável; com controlador |
|
chefão |
50# (2 polegadas) ou 90# (2,5 polegadas) |
|
|
sistema de interrupção |
Câmara de interrupção de ar 30/30 por eixo |
|
|
válvula de freio de emergência |
padrão |
|
|
estação de energia hidráulica |
padrão (motor diesel) |
|
|
suspensão |
suspensão rígida |
|
|
eixo |
duas linhas quatro eixos |
|
|
controle remoto |
opcional |
|
|
pneu |
marca triangular, 825-16*16 |
|
|
aro da roda |
marca xingbo, 6,5*16 |
|
|
Caixa de ferramentas |
padrão |
|
|
guarda esquerdo/direito |
padrão |
|
|
porta-rodas |
marca zhengli |
|
|
guarda-lamas |
padrão |
|
|
escada hidráulica traseira |
não |
|
|
sistema de controle hidráulico |
padrão; X por fio; controle remoto |
|
|
Outros |
Iluminação interior, padrão, circuito impermeável; |
|
|
observações |
processamento de cera em spray; ferramentas sobressalentes; |
|
Produto completo pronto para envio






Produção do zero






Desenho de design

Para esses reboques customizados, fabricamos de acordo com os cabeçotes do trator do cliente, conhecendo o pino mestre e a altura ao solo, emitiremos o projeto de forma a fazer com que o reboque combine com o cabeçote do trator do cliente.
Nossos engenheiros irão ajudá-lo a selecionar o modelo correto, já que somos fabricantes de semirreboques há 12 anos. Contamos com equipe profissional para entender totalmente as especificações dos caminhões e veículos.
• Tempo de produção: 35 a 65 dias
• Desembaraço aduaneiro: 2 dias
• Outros:
• - 3 Pares de sapatas de freio serão dados gratuitamente
• - 1 pneu sobressalente
• - Kit de ferramentas de operação
• - Extintor de incêndio
• As peças acima são fornecidas gratuitamente aos clientes quando o pedido é feito para nós.
• Outros: Os veículos novos serão encerados duas vezes antes do embarque, para protegê-los da corrosão externa.
Para mais informações, entre em contato conosco por e-mail ou Whatsapp.
Tag: semirreboque lowboy de pescoço de ganso removível com carregamento de 80 toneladas, China semirreboque lowboy de pescoço de ganso removível com carregamento de 80 toneladas fabricantes, fornecedores, fábrica, trailer de cama baixa de alumínio, trailer de cama baixa de mesa, Reboque de carregamento traseiro, trailer de baixo perfil de baixo perfil, Carregando lateral Trailer de cama baixa, reboque de cama baixa galvanizada






